
HAVLÍČKŮV BROD
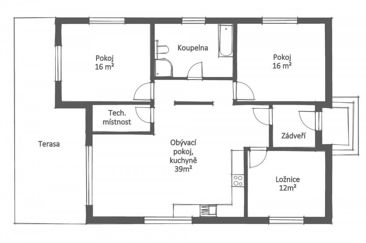
Typový dům VERITAS
Období realizace01 - 04/2019
První Veritas svého druhu už je na světě a stojí v Havlíčkově Brodě v nové zástavbě nad výpadovkou na Světlou nad Sázavou. Už od začátku celý proces nabyl nebývalé obrátky a to včetně získání stavebního povolení a zhotovení základové desky. To vše pod taktovkou investora, který ke svým úkolům přistupuje velmi zodpovědně a probémy řeší ještě dříve, než se vysktynou.
Dům je navržen v certifikovaném stavebním systému DNK jako difuzně otevřená montovaná dřevostavba s vazníkovou valbovou střechou.
Obvodové panely domu jsou tvořeny nosnými KVH profily 60/140, mezi kterým je do dutiny aplikována celulózová tepelná izolace Climatizer Plus o hustotě min. 65 kg/m3 – tato hodnota bezpečně zajišťuje, že izolace nesedá a můžeme tak plně využít jejích předností (akustického útlumu a fázového posunu tepelné vlny), kterými vyniká před ostatními běžně používanými izolanty. Z vnitřní strany je na nosném rámu umístěna velkoformátová OSB4 deska (tl. 15 mm, výrobce Egger), která plní funkci smykově tuhé desky a parobrzdy. Dále jsou instalovány KVH hranoly instalační přestěny (60×60), kde budou pozdějí rozvedeny instalace a předstěna bude následně zateplena minerální vatou a zaklopena Fermacellem. Z vnější strany je na nosném rámu přisponkována (nerezovými sponkami) dřevovláknitá tepelně-izolační deska STO tl. 60 mm. Celková tloušťka stěny je tedy cca 290 mm.
Nad terasou je přesah střechy vynesen dřevěnou konstrukcí, nad závětřím u vchodu pouhým vykonzolováním střechy. Vlastní nosná střešní konstrukce je tvořena dřevěnými příhradovýmí vazníky s kovovými deskami s prolisovanými trny.
Musím pochválit investora za respektování naplánovaného harmonogramu a jeho iniciativu v organizaci svých subdodávek. Je to zcela mimořádné a obdivuhodné. Také díky tomu bude havlíčkobrodké Veritas jeden z nejrychleji postavených a zabydlených domů, které jsme kdy stavěli. Plánovaný termín nastěhování je koncem dubna, tedy 3,5 měsíce po montáži panelů!!!

Příběh domu

























